Ponuda > Ljube Nedića 19

Penthouse

|

Ponuda

Stan 25 - VIII sprat

Prodat

Stan 26 - VIII sprat

Dostupan

|

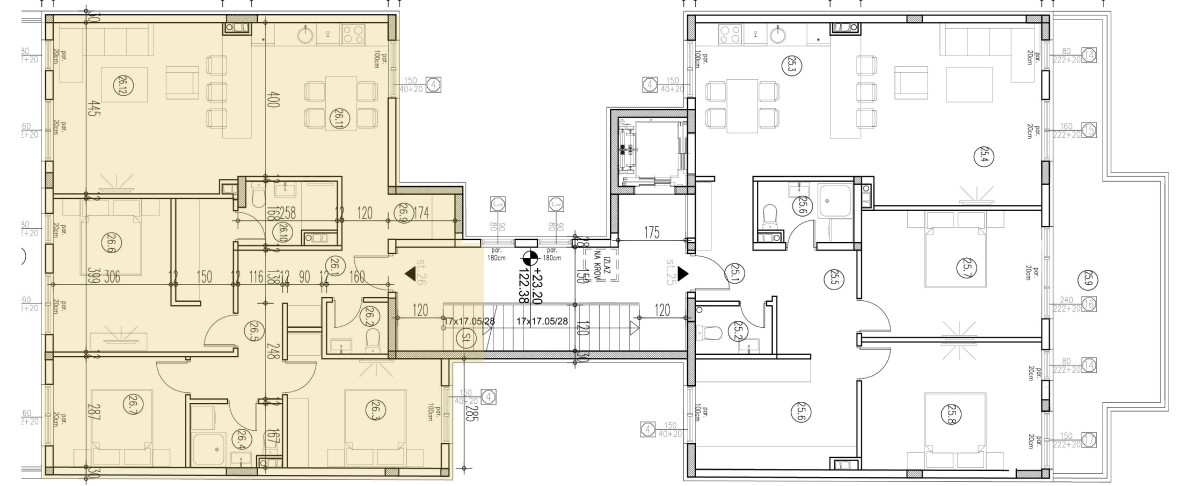
Penthouse br. 26. pozicioniran na poslednjem (VIII.) spratu, ukupne površine 116m2 nudi jedinstven doživljaj pogleda na ceo Voždovac. Južno orijentisan sa velikim staklenim površinama pretvara mesto življenja u mesto uživanja u svakom trenutku. Prednost kupovine u ranoj fazi izgradnje donosi mogućnost uredjenja rasporeda pregradnih zidova i organizacije prostora, takodje prostor možete kupiti u sivoj fazi i završne radove izvoditi u skladu sa vašim željama. Naša ideja je da raspored u stanu bude kombinacija udobnosti i
maksimalne iskorišćenosti prostora pa bi planirana struktura stana sadržala tri spavaće sobe, dnevni boravak, posebno izdvojenu kuhinju i trpezariju, tri mokra čvora i terasu koja se prostire celom širinom stana i sa koje se pruža predivan pogled. Granitna keramika prve klase, višeslojni parket kao podna obloga, toplotne pumpe kao sistem grejanja i hladjenja, sigurnosna vrata…samo su deo spiska materijalizacije koja život čini udobnijim.

|

3D prikaz

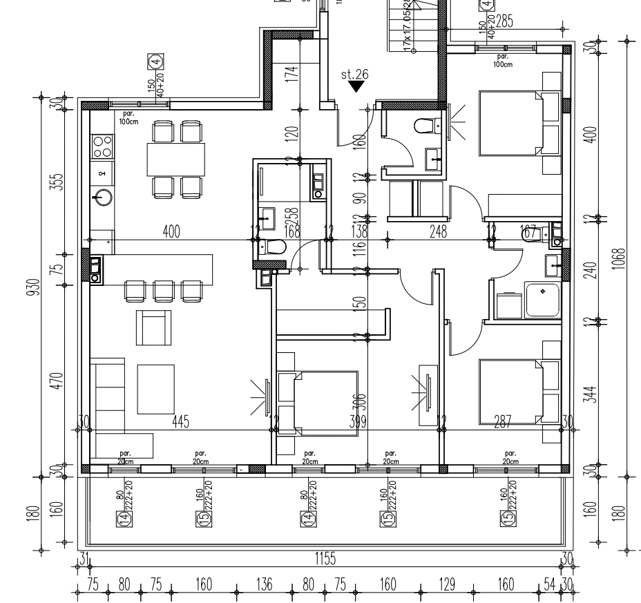
Osnova stana

Tipska osnova

Prostorije

Prostorija
Površina(m2)
Hodnik
6.38
WC
2.16
Garderober
12.10
Kupatilo
4.00
Degažman
5.84
Master soba
18.26
Soba
9.87
Terasa
18.61
Garderoba
2.04
Kupatilo
3.81
Kuhinja sa trpezarijom
14.20
Dnevna soba
22.33
Površina stana: 116.01

© 2025 FineLiving D.O.O

M V