Početna
Projekti
Aura
Ljube Nedića 19
Gostivarska 32
Gostivarska 35
Ćirila i Metodija 57
Proizvodi
Sanitarije
Stolarija
Rasveta
Keramika
Razno
Početna
Projekti
Aura
Ljube Nedića 19
Gostivarska 32
Gostivarska 35
Ćirila i Metodija 57
Proizvodi
Sanitarije
Stolarija
Rasveta
Keramika
Razno
Fine Living
Galerija
Kontakt
Fine Living
Galerija
Kontakt
Početna
Projekti
Ljube Nedića 19
Aura
Gostivarska 32
Gostivarska 35
Ćirila i Metodija 57
Proizvodi
Sanitarije
Stolarija
Rasveta
Keramika
Razno
Fine Living
Galerija
Kontakt
Početna
Projekti
Ljube Nedića 19
Aura
Gostivarska 32
Gostivarska 35
Ćirila i Metodija 57
Proizvodi
Sanitarije
Stolarija
Rasveta
Keramika
Razno
Fine Living
Galerija
Kontakt
Ponuda > Ljube Nedića 19
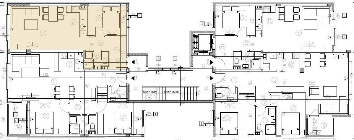
Dvosoban - 45.93m2
73.16 m2
46.29 m2
|
Ponuda
Stan 3 - II sprat
Prodat
Stan 7 - III sprat
Prodat
Stan 11 - IV sprat
Prodat
Stan 15 - V sprat
Prodat
Stan 19 - VI sprat
Prodat
Stan 23 - VII sprat
Prodat
|
3D prikaz
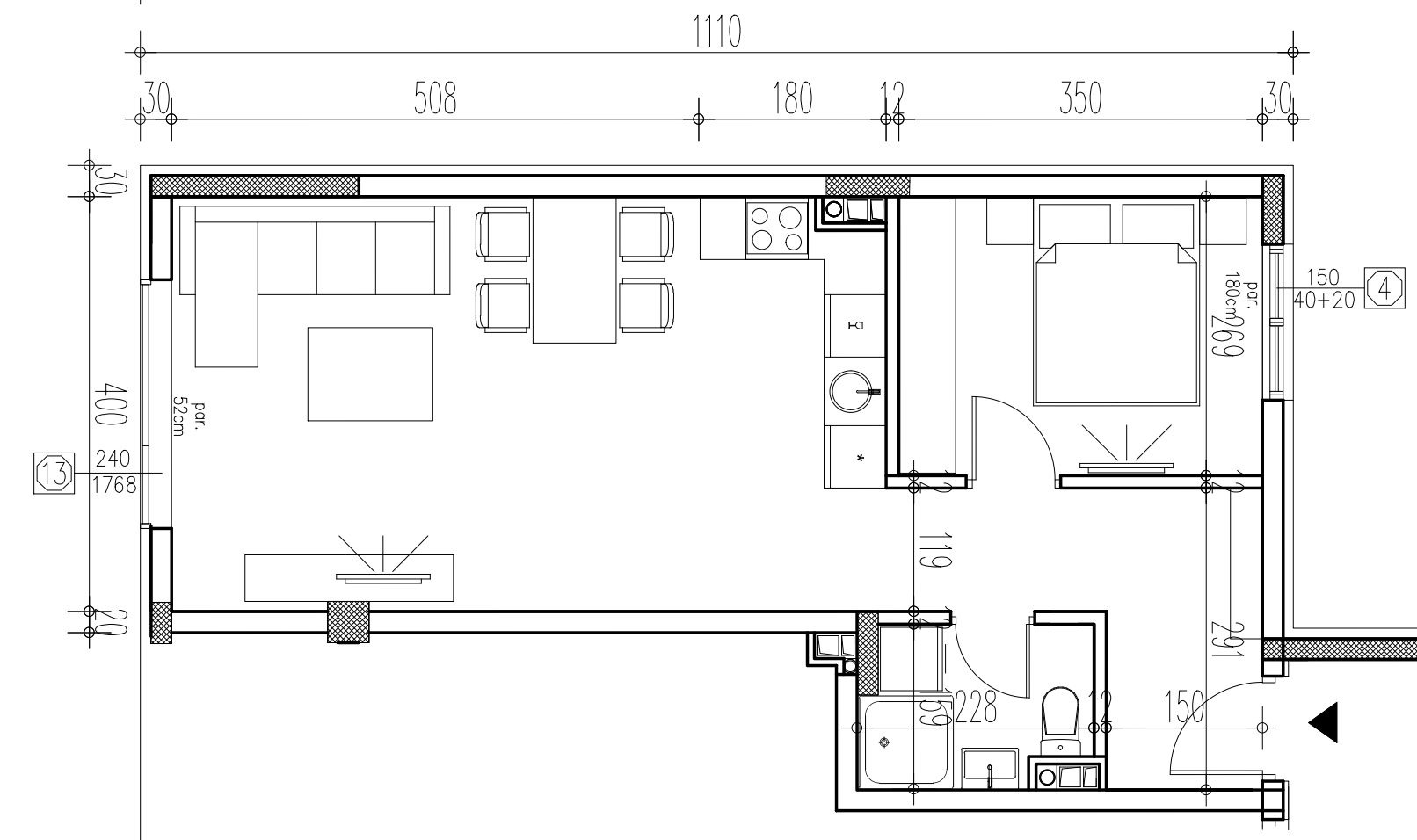
Osnova stana
Tipska osnova
Prostorije
Prostorija
Površina(m2)
Hodnik
4.35
Kupatilo
3.48
Hodnik
4.67
Soba
9.41
Kuhinja
5.05
Dnevna soba
20.39
Površina stana: 45.93
Galerija
Početna
Projekti
Aura
Ljube Nedića 19
Gostivarska 32
Gostivarska 35
Ćirila i Metodija 57
Proizvodi
Sanitarije
Stolarija
Rasveta
Keramika
Razno
Početna
Projekti
Aura
Ljube Nedića 19
Gostivarska 32
Gostivarska 35
Ćirila i Metodija 57
Proizvodi
Sanitarije
Stolarija
Rasveta
Keramika
Razno
Fine Living
Galerija
Kontakt
Fine Living
Galerija
Kontakt
Instagram
Envelope
© 2025 FineLiving D.O.O
M V