Ponuda > Ljube Nedića 19

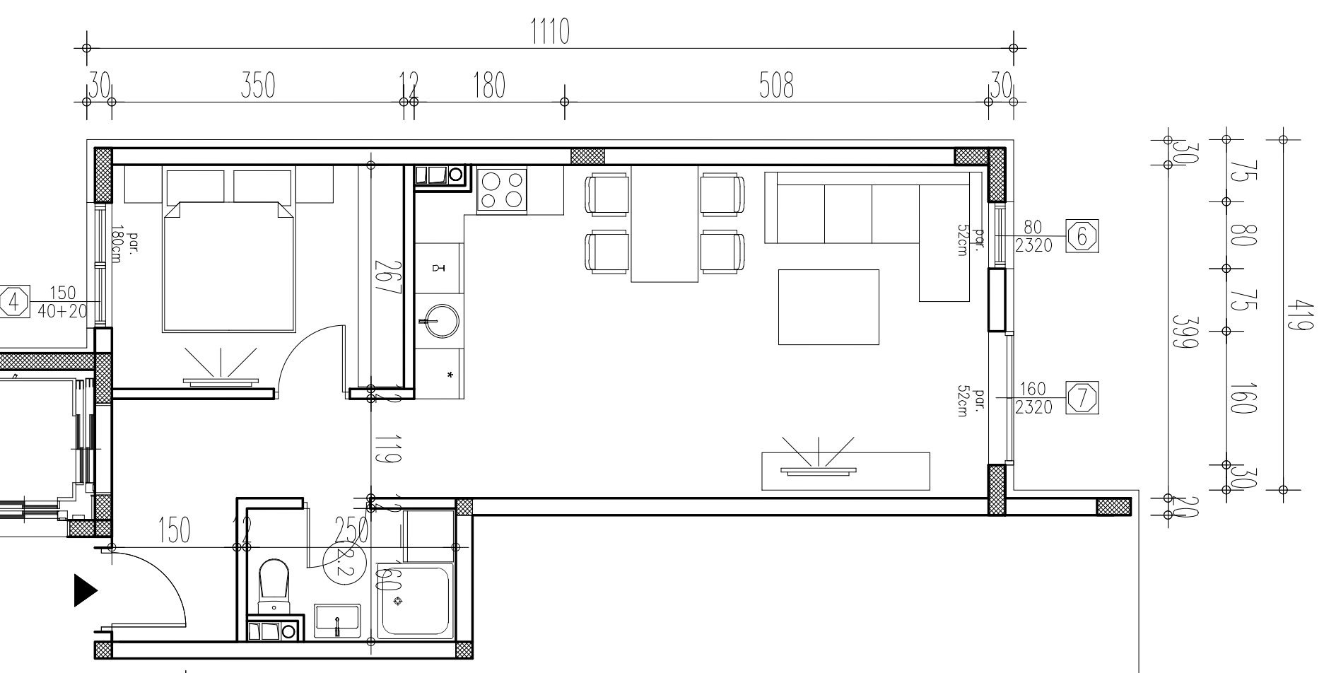
Dvosoban - 46.29m2

|

Ponuda

Stan 2 - II sprat

Prodat

Stan 6 - III sprat

Prodat

Stan 10 - IV sprat

Prodat

Stan 14 - V sprat

Prodat

Stan 18 - VI sprat

Prodat

Stan 22 - VII sprat

Prodat

|

3D prikaz

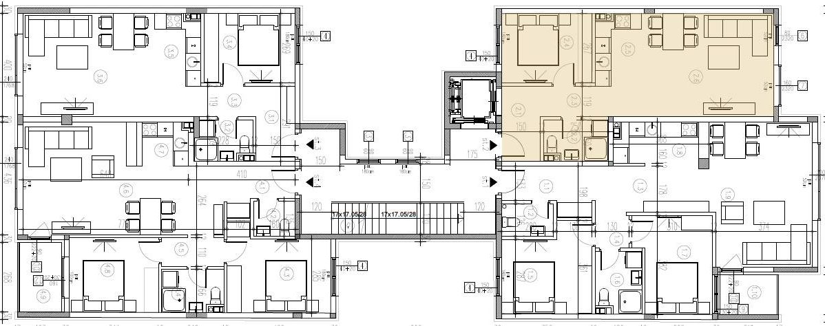
Osnova stana

Tipska osnova

Prostorije

Prostorija
Površina(m2)
Hodnik
4.36
Kupatilo
3.99
Hodnik
4.65
Soba
9.39
Kuhinja
5.02
Dnevna soba
20.31
Površina stana: 46.29

© 2025 FineLiving D.O.O

M V